71 mq
2
1
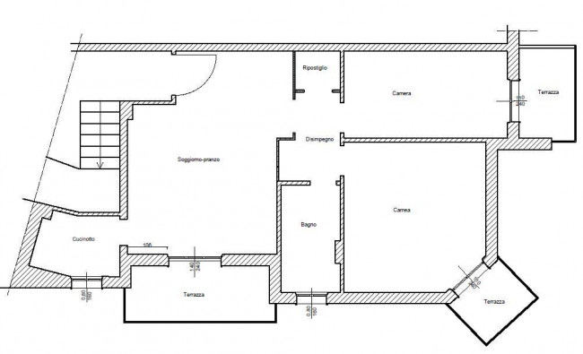
L'Immobiliare Unika propone in esclusiva di Vendita nel Comune di Porto San Giorgio (FM), in zona sud, luminoso Appartamento di circa 71 mq posto al piano primo servito da ascensore e libero su due lati. La soluzione abitativa è inserita in un valido contesto immobiliare, recentemente ristrutturato nelle facciate e nei terrazzi. L'Appartamento si compone di ingresso sul soggiorno-sala da pranzo con affaccio diretto al terrazzo con vista mare e porto, angolo cottura separato con finestra, disimpegno notte attrezzato che comprende un'ampia camera padronale, seconda camera doppia, entrambe con balcone privato, ripostiglio e bagno finestrato. Completa la proprietà comodo posto auto nella corte condominiale. Possibilità di acquisto a parte di garage di circa 17 mq posto al piano terra, dotato di luce ed acqua, con comoda serranda elettrificata, posizionato esattamente sotto all'abitazione con possibilità di collegamento interno con l'Appartamento. Immobile in buone condizioni d'uso, in posizione eccellente, a due passi dal mare e da tutti i servizi, dotato di atrio condominiale. Ideale per uso residenziale, come seconda casa per il mare o come investimento. Ulteriori informazioni e dettagli presso il nostro studio. Classe energetica "in fase di definizione". RIF.VV352. Immobiliare Unika 0734 300555 - 3271687900.

71 mq
2
1