79 mq
3
1
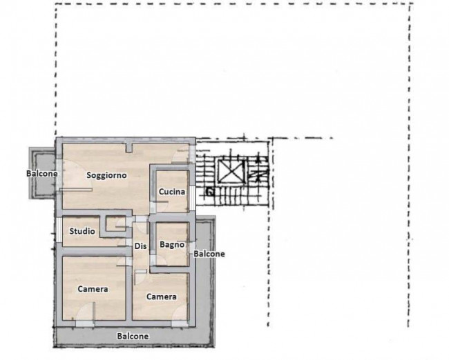
L'Immobiliare Unika propone in esclusiva di locazione nel Comune di Fermo (FM), nel quartiere Tirassegno, comodo Appartamento di circa 79 mq posto al piano secondo di edificio residenziale, libero su tre lato e servito da ascensore. L'immobile si compone di ingresso, grande soggiorno con accesso servito da balcone, angolo cottura separato, disimpegno notte che comprende una camera matrimoniale, seconda camera, entrambe servite da balcone, studio, ripostiglio attualmente adibito a lavanderia e bagno finestrato con affaccio al balcone perimetrale. Completa la proprietà comodo posto auto nella corte condominiale. Soluzione abitativa in buone condizioni d'uso, arredata. Disponibile da subito, in posizione eccellente, a due passi dal centro del Paese e da tutti i servizi. Richieste referenze. No animali. Classe energetica "F". Rif. AA415. Immobiliare Unika 0734 300555 - 3891037886.

79 mq
3
1